Дом, д. Малые Горки, 57 Показать на карте
Малые Горки
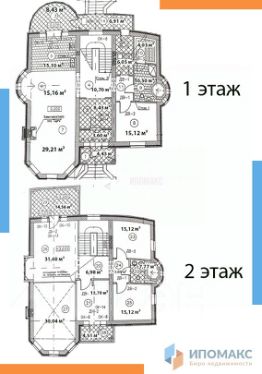
Арт. 116415854 МО, д. Малые Горки, 27 км от МКАД по скоростному Киевскому шоссе.Ухоженный, невероятно уютный, качественный загородный дом с красивым ухоженным участком. Возведен в 2010 году, по индивидуальному проекту, с использованием только лучших и качественных отделочных материалов.Преимущества объекта:- Второй свет в гостиной 6 метров, создает атмосферу свободы и простора.- Итальянская кухня с обеденной зоной идеально подходит для кулинарных шедевров и семейных застолий.- Мебель из массива дерева, придает интерьеру стиль и элегантность.- Ухоженный земельный участок 11 соток с ландшафтным дизайном и уютной зоной для отдыха, где можно наслаждаться свежим воздухом.- Зимний сад с панорамными окнами.- Роскошная ванная комната с круглой ванной, отдельной душевой кабиной и стильной отделкой, производит атмосферу spa-зоны.- Просторная и комфортабельная беседка, выполненная из качественных материалов, станет идеальным местом для дружеских встреч и семейных праздников. -Бассейн объемом 20 кубометров - зона отдыха и развлечений в жаркие летние дни.Конструктив:Фундамент: монолитная плита толщиной 200мм и глубиной 1800см из качественного бетона марки М300.Материал стен: пенобетонные блоки и рабочий кирпич.Перекрытия: монолитная плита толщиной 200мм из бетона марки М300, между вторым и третьим этажом - деревянные, брусовые.Крыша: мягкая кровля, финская черепица. Удобная, продуманная планировка: 1 этаж: прихожая, котельная, санузел, гостиная с камином, кухня-столовая с выходом в зимний сад, гостевая спальня. 2 этаж: 3 спальни, санузел, кабинет. 3 этаж: спальня, кабинет или отдельная комната на Ваше усмотрение, комната свободной планировки. Коммуникации: Электричество - 15 кВт,Водоснабжение - скважина,Канализация - септик,Отопление - центральное, газовое. Из дополнительных строений на участке: Беседка, на капитальном монолитном фундаменте, с мангальной зоной, мокрой точкой и зоной отдыха. Навес на 4 автомобиля. Въезд на участок осуществляется через откатные ворота марки Hermann. Хозяйственное, капитальное строение.Деревня окружена лесным массивом, рядом протекает река Десна. В самом поселении есть парковые зоны, пруды, магазин, футбольное поле, детская площадка.В радиусе 2 км от границ участка: Теннисный клуб, торговый центр, сетевые продуктовые и интернет магазины, пункты выдачи, детские досуговые заведения, частные и муниципальные школы и детские сады. Не упустите шанс стать владельцем этого замечательного дома! Остались вопросы? Звоните, отвечу на каждый и организую оперативный показ в удобное для Вас время. Объект ведет Людмила Ахмедова.
333 м2
3 этажа
- Показать контакты
- Добавить в избранное
333 м2
3 этажа
44 990 000
134 983 /м2
