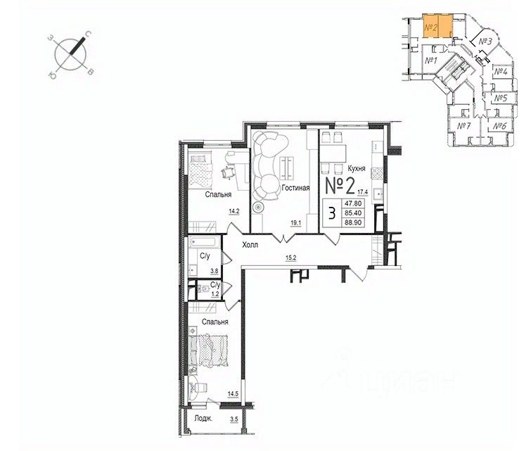
Продаётся 3-комнатная квартира в сданном доме (Секция 3), срок сдачи: III-кв. 2024, общей площадью 89.5 кв.м., на 8 этаже. Жилой комплекс ''Школьный'' - современный комплекс комфорт-класса в одном из самых комфортных районов города Наро-Фоминска. Из окон на верхних открываются потрясающие панорамные виды на реку Нара и зеленые массивы.
Проектом предусмотрено размещение детской игровой площадки, спортивной площадки, размещение мест для отдыха. С торца нового дома, на первом этаже размещается территория детского сада с прогулочными площадками и теневыми навесами. Ландшафтное озеленение предполагает высадку кустарников, газона, хвойных и лиственных












