Если цена в объявлении изменится, мы сразу сообщим вам об этом на электронную почту.
Нажимая «Подписаться», вы соглашаетесь с правилами.
продам 1-к, Клубная, 55 корп. 15 500 000 ₽
29 июня 2025
Дата публикации объявления
Обн. 29 июня 2025
Дата обновления объявления
6
Количество просмотров (+ просмотры за сегодня)
181 518 ₽/м²
Чистая продажа
Термин "Чистая продажа" означает, что в квартире никто не прописан или
есть куда выписаться и вывезти вещи. Это лучший вариант для покупателя.
Вероятность срыва сделки минимальна.
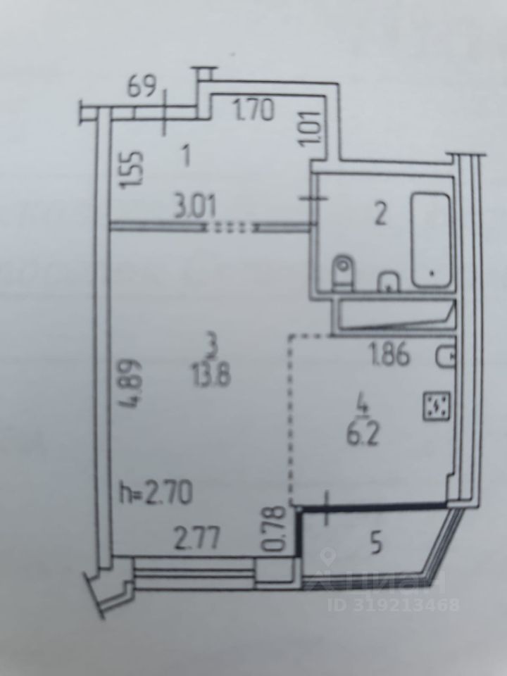
Продается уютная студия в поселке городского типа Селятино, расположенная на 10-м этаже 15-этажного дома по адресу: Клубная улица, 55к1. Общая площадь квартиры составляет 30,3 кв. м, жилая площадь — 13,8 кв. м, кухня — 6,2 кв. м. Высота потолков — 2,85 метра. Из окон открывается вид на улицу, и есть лоджия для приятного отдыха на свежем воздухе.
Квартира предлагается без ремонта, что дает вам возможность оформить интерьер по своему вкусу и создать пространство, идеально подходящее для вашего стиля жизни. В студии есть совмещенный санузел. Это отличная возможность для тех, кто хочет воплотить свои дизайнерские идеи в жизнь.
Дом оснащен пассажирским и грузовым лифтами, а также пандусом, что делает передвижение удобным.
Продается уютная студия в поселке городского типа Селятино, расположенная на 10-м этаже 15-этажного дома по адресу: Клубная улица, 55к1. Общая площадь квартиры составляет 30,3 кв. м, жилая площадь — 13,8 кв. м, кухня — 6,2 кв. м. Высота потолков — 2,85 метра. Из окон открывается вид на улицу, и есть лоджия для приятного отдыха на свежем воздухе.
Квартира предлагается без ремонта, что дает вам возможность оформить интерьер по своему вкусу и создать пространство, идеально подходящее для вашего стиля жизни. В студии есть совмещенный санузел. Это отличная возможность для тех, кто хочет воплотить свои дизайнерские идеи в жизнь.
Дом оснащен пассажирским и грузовым лифтами, а также пандусом, что делает передвижение удобным. Вокруг дома имеется развитая инфраструктура: в шаговой доступности находятся школы, детские сады, клиники и магазины. До станции метро ''Апрелевка'' можно добраться на автомобиле всего за 12 минут, что позволяет без труда добираться до Москвы.
Продажа квартиры осуществляется напрямую от собственника. Обременений нет, поэтому сделка пройдет быстро и без лишних хлопот. Возможна покупка в ипотеку.
Приглашаем вас на просмотр квартиры, чтобы лично оценить все ее преимущества. Записывайтесь на удобное для вас время, и мы с удовольствием покажем вам ваш будущий дом.