Если цена в объявлении изменится, мы сразу сообщим вам об этом на электронную почту.
Нажимая «Подписаться», вы соглашаетесь с правилами.
продам 3-к, Свободы площадь, 176 300 000 ₽
11 сен
Дата публикации объявления
Обн. 30 окт
Дата обновления объявления
8
Количество просмотров (+ просмотры за сегодня)
115 809 ₽/м²
Чистая продажа
Термин "Чистая продажа" означает, что в квартире никто не прописан или
есть куда выписаться и вывезти вещи. Это лучший вариант для покупателя.
Вероятность срыва сделки минимальна.
Арт. 102079025 В продаже светлая 3-х комнатная квартира в центре г. Наро-Фоминска
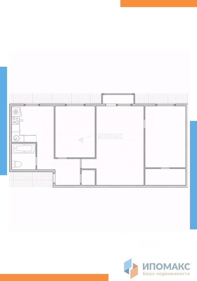
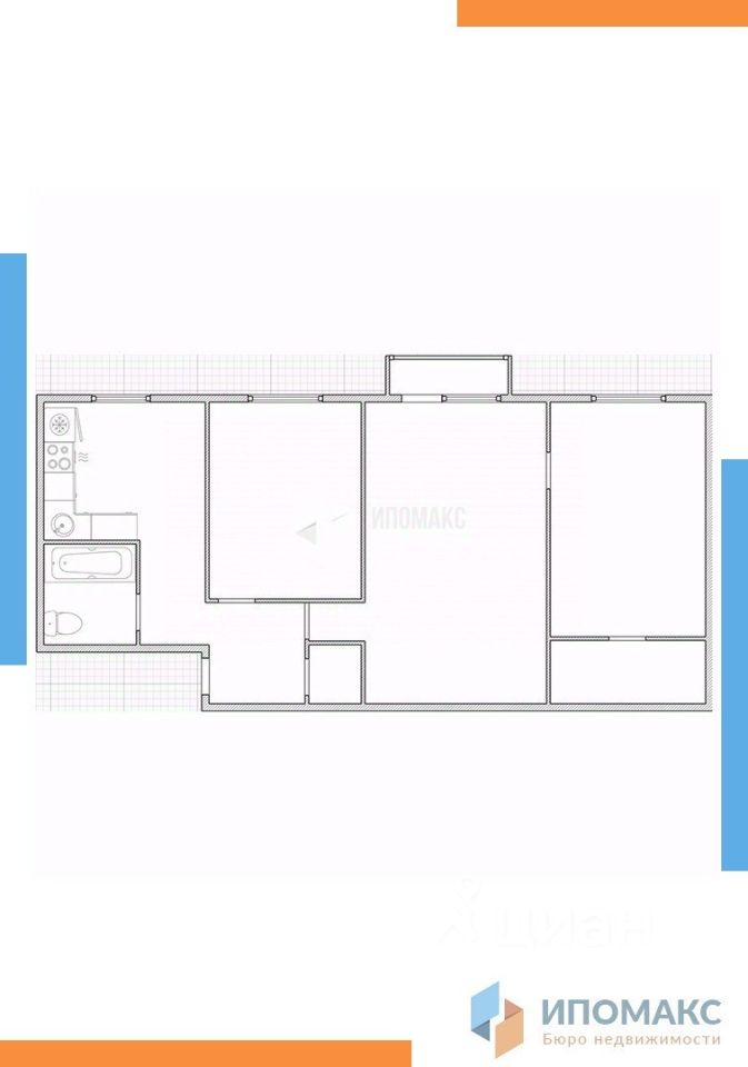
- Квартира находится на 5 ом этаже 5-ти этажного дома, - Общая площадь квартиры 54,4 м2 , - Кухня 6 м², - Комнаты 18 м2, 11 м2 и 9м2 - Застеклённый балкон , - Выполнен качественный ремонт, окна пластиковые, - Санузел совмещенный, -Установлен кондиционер.
Информация по квартире:
Квартира в отличном состоянии с ремонтом, ухоженная, светлая, чистая, очень теплая. Отопление центральное, дом газифицирован. В квартире остаётся мебель (новый кухонный гарнитур, 3 дивана, спортивный тренажёр, 4 шкафа для хранения, кресло, стиральная машина, телевизор, кондиционер, газовая плита). Спокойные и дружелюбные соседи.
Арт. 102079025 В продаже светлая 3-х комнатная квартира в центре г. Наро-Фоминска
- Квартира находится на 5 ом этаже 5-ти этажного дома, - Общая площадь квартиры 54,4 м2 , - Кухня 6 м², - Комнаты 18 м2, 11 м2 и 9м2 - Застеклённый балкон , - Выполнен качественный ремонт, окна пластиковые, - Санузел совмещенный, -Установлен кондиционер.
Информация по квартире:
Квартира в отличном состоянии с ремонтом, ухоженная, светлая, чистая, очень теплая. Отопление центральное, дом газифицирован. В квартире остаётся мебель (новый кухонный гарнитур, 3 дивана, спортивный тренажёр, 4 шкафа для хранения, кресло, стиральная машина, телевизор, кондиционер, газовая плита). Спокойные и дружелюбные соседи.
Инфраструктура:
- Детский сад и школа, хореографическая школа, ледовый дворец, - Торговые центры, продуктовые сетевые магазины, фудкорты, кинотеатр. - Аптеки. - Банки, -Маркетплейсы, -Больницы, поликлиники, перинатальной центр.
Транспортная доступность:
Город Наро-Фоминск находится в 57 км от МКАД по Киевскому шоссе.
- до ж/д станции Нара 7 минут - электрички от ж/д Нара до Киевского вокзала 60-65 минут. - Автобус и маршрутки 309 до метро Саларьево, время в пути 55 минут.
Документы:
Все документы проверены и готовы к быстрому выходу на сделку. Рассматриваем любой вариант приобретения: - два взрослых собственника, - свободная продажа.
Полное юридическое сопровождение.
Агент Анастасия Данилова была на объекте и с удовольствием отвечу на все вопросы!