В избранном
В избранное
Пожаловаться
Напечатать
Следить за ценой

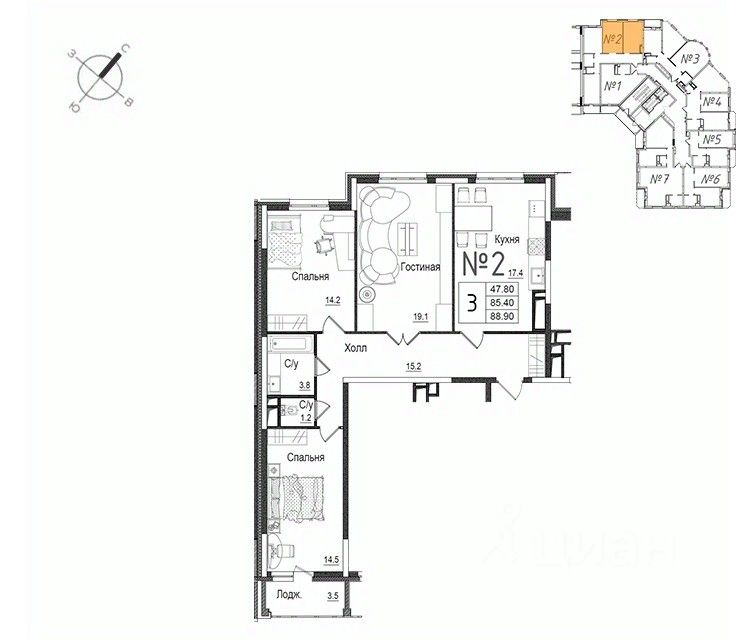
продам 3-к, Школьная, 915 500 000 ₽

18 окт
Обн. сегодня
1
173 767 ₽/м²
  • Чистая продажа