В избранном
В избранное
Пожаловаться
Напечатать
Следить за ценой

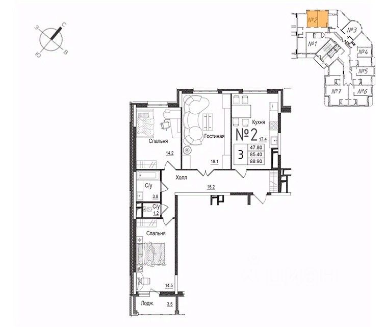
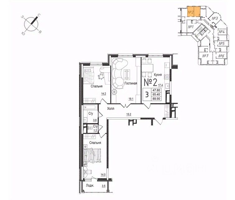
продам 3-к, Школьная, 915 400 000 ₽

18 окт
Обн. 11 мая
8
173 034 ₽/м²
  • Чистая продажа