Объект: встроенная часть жилого дома, первый этаж.
Адрес: М.О., г. Орехово-Зуево, ул. Ленина, д. 49
Месторасположение: объект расположен на центральной улице города, образующей ''торговый коридор'', рядом с авто- и железнодорожным вокзалом.
Формат: стрит- ритейл
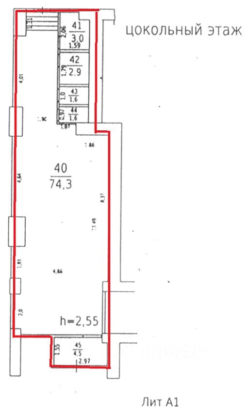
Площадь: 87,9 кв.м.
Мощность 40 кВт, при необходимости есть возможность увеличения на 10 кВт
Оснащение: центральные городские системы горячего и холодного водоснабжения, теплоснабжения, водоотведения и электроснабжения.













