Если цена в объявлении изменится, мы сразу сообщим вам об этом на электронную почту.
Нажимая «Подписаться», вы соглашаетесь с правилами.
продам дом, Турейка Парк, 7917 999 998 ₽
23 окт
Дата публикации объявления
Обн. 19 ноя
Дата обновления объявления
120 000 ₽/м²
Чистая продажа
Термин "Чистая продажа" означает, что в квартире никто не прописан или
есть куда выписаться и вывезти вещи. Это лучший вариант для покупателя.
Вероятность срыва сделки минимальна.
Этажей1
Площадь участка10 соток
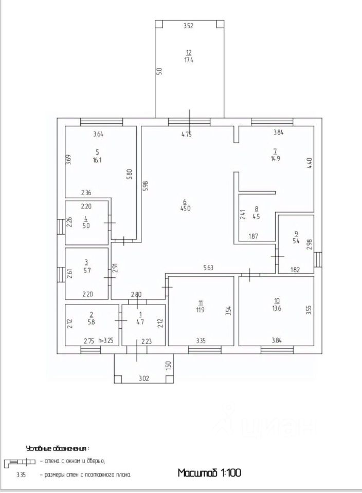
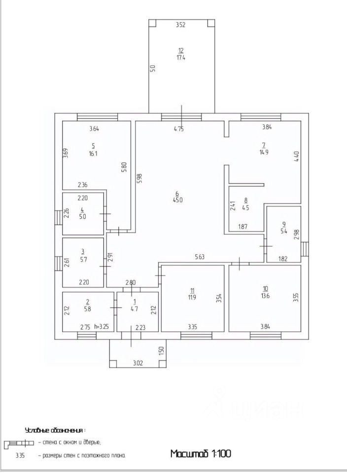
Общая площадь150 м2
ЭлектричествоЕсть
Газоснабжениецентральное
Арт. 123023903 Продаётся одноэтажный дом из блока в КП ''Турейка Парк'', город Наро-Фоминск. На берегу реки Нары, идеально для круглогодичного проживания.
Стадия строительства, готовность январь 2026 года. Готовый дом с отделкой от застройщика ''white box''. Подходит под семейную ипотеку со ставкой 6%.
Конструкция: - Дом построен из газоблоков. - Фундамент - монолитная армированная плита. - Крыша - металлочерепица. - Теплые полы по всему дому. -Выход из гостиной на веранду (15 м2)
Планировка: современное и продуманное зонирование, включающее:
- Три уютные спальни — каждая для спокойного сна и отдыха. - Гостиная с выходом на веранду — пространство для семейных встреч и дружеских посиделок.
Арт. 123023903 Продаётся одноэтажный дом из блока в КП ''Турейка Парк'', город Наро-Фоминск. На берегу реки Нары, идеально для круглогодичного проживания.
Стадия строительства, готовность январь 2026 года. Готовый дом с отделкой от застройщика ''white box''. Подходит под семейную ипотеку со ставкой 6%.
Конструкция: - Дом построен из газоблоков. - Фундамент - монолитная армированная плита. - Крыша - металлочерепица. - Теплые полы по всему дому. -Выход из гостиной на веранду (15 м2)
Планировка: современное и продуманное зонирование, включающее:
- Три уютные спальни — каждая для спокойного сна и отдыха. - Гостиная с выходом на веранду — пространство для семейных встреч и дружеских посиделок. -Изолированная кухня. - Два санузла — удобство и комфорт для каждой зоны. - Просторная прихожая — место для хранения верхней одежды. - Гардеробная — организованное хранение вещей. - Техническое помещение — всё необходимое оборудование для функционирования дома.
Участок и территория: - Участок 10 соток — место для сада, зоны барбекю и детской площадки. - Огорожен забором, создающего ощущение безопасности и уюта. - Откатные ворота и парковочное место — удобный въезд на территорию.
КП ''Турейка-Парк'': Охраняемая территория безопасность и спокойствие. Детская площадка. Хорошая инфраструктура Отличная экология и живописная природа, выход к реке Нара, беседки на берегу общего пользования.
Не упустите возможность приобрести этот уютный дом для комфортной жизни всей семьи! Звоните прямо сейчас, чтобы узнать все подробности и записаться на просмотр.