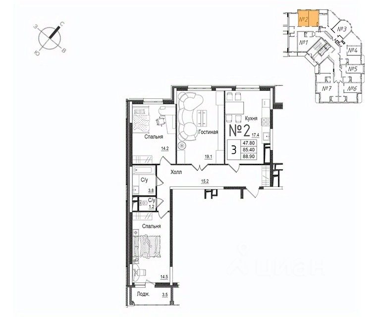
Продаётся 3-комнатная квартира в сданном доме (Новикова, 20/1 (Секция 3)), срок сдачи: III-кв. 2024, общей площадью 89.2 кв.м., на 6 этаже. Жилой комплекс ''Школьный'' - современный комплекс комфорт-класса в одном из самых комфортных районов города Наро-Фоминска. Из окон на верхних открываются потрясающие панорамные виды на реку Нара и зеленые массивы.
Проектом предусмотрено размещение детской игровой площадки, спортивной площадки, размещение мест для отдыха. С торца нового дома, на первом этаже размещается территория детского сада с прогулочными площадками и теневыми навесами. Ландшафтное озеленение предполагает высадку кустарников, газона, хвойных и лиственных












