В избранном
В избранное
Пожаловаться
Напечатать
Следить за ценой

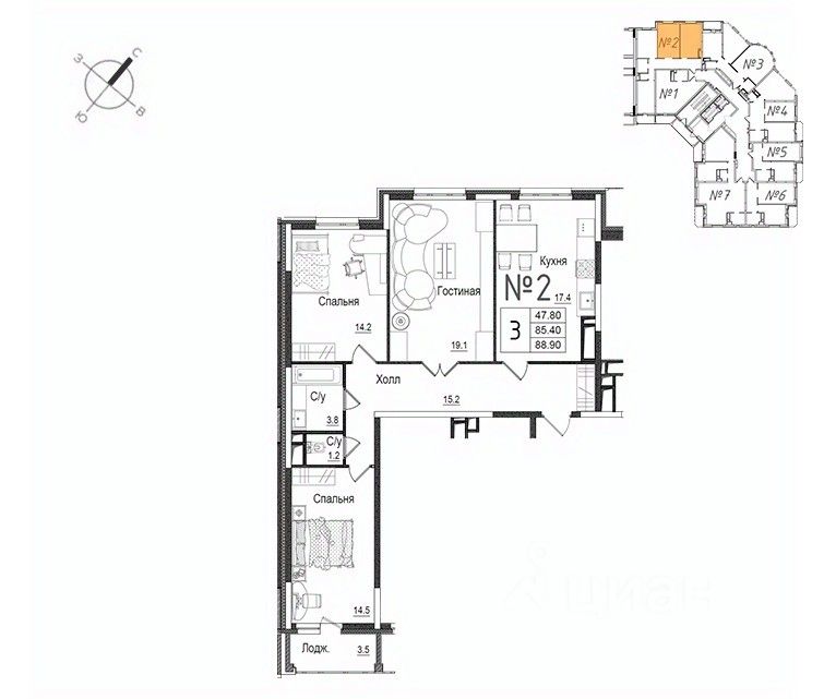
продам 3-к, Школьная, 915 400 000 ₽

4 фев
Обн. вчера
172 452 ₽/м²
  • Чистая продажа