3-к, Курзенкова, 12 Показать на карте
Наро-Фоминск
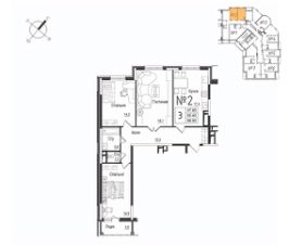
В современном жилом квартале ''Авиатор2'' в НароФоминске продаётся 3-комнатная квартира площадью 95.6 м² без отделки. Это не точечная высотная застройка, а цельный жилой квартал для тех, кто ценит баланс города и уюта.Преимущества квартала ''Авиатор2'': • Камерный формат застройки: ограниченное количество квартир создает спокойную, приватную атмосферу без ощущения ''человейника''. • Двор без машин: безопасное пространство для прогулок и детских игр, парковка вынесена за пределы внутренней территории, чтобы во дворе было тихо и комфортно. • Функциональные планировки: квартиры с продуманной геометрией комнат и большими окнами, пространство легко адаптировать под образ жизни семьи. • Современная инженерия: монолитная технология строительства, качественные материалы, энергоэффективные решения и надёжные инженерные системы, рассчитанные на долгий срок службы. • Сформированная городская среда: рядом школы, детские сады, медицинские учреждения, спорт и транспорт, городская инфраструктура уже сформирована.Транспортная доступность: • 45 минут на авто до Москва-Сити. • 25 минут на авто до аэропорта Внуково. • 50 минут на экспрессе до Киевского вокзала.Квартал ''Авиатор'' интегрирован в городскую среду НароФоминска, сочетая современные фасады, сдержанную архитектуру и комфортную этажность с балансом природы и инфраструктуры: рядом лес и река, школы, медучреждения, спорткомплексы и торговые центры, а удобный выезд на Киевское шоссе позволяет совмещать работу в столице и спокойную жизнь в городе.
95 м2
13 / 15 этаж
Монолит
- Показать контакты
- Добавить в избранное
95 м2
13 / 15 этаж
Монолит
18 089 736
189 223 /м2
Новостройка,
IV-2027
IV-2027
