Дом, Успенская Показать на карте
Наро-Фоминск
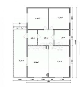
Ваш идеальный дом для жизни в черте городаПодходит под семейную ипотеку со ставкой 6%Продаётся новый просторный дом 110 кв.м. с уютным участком 7 соток в г. Наро-Фоминск. Сочетание выгодного расположения, комфортной инфраструктуры и возможности воспользоваться выгодными условиями по ипотеке и материнскому капиталу. А возможность прописки после оформления дома делает его идеальным вариантом для постоянного проживания.Описание дома: Площадь: 110 кв.м. Материал: надёжные блоки с облицовкой декоративной штукатуркой Короед — практичное решение для долговечности и стильного вида. Фундамент: монолитная плита. Крыша: металлочерепица. Планировка: просторная кухня-гостиная, три жилых комнаты, два санузла — удобно для большой семьи! Комфорт круглый год: в доме установлен тёплый пол, что обеспечит уют даже в самые морозные дни.Подключенные коммуникации: Электричество: мощность 15 кВт — хватит и на бытовую технику, и на дополнительные устройства. Водоснабжение: скважина. Отопление: современный электрический котёл.Участок: Площадь — 7 соток. Полностью огорожен металлическим штакетником и оборудован откатными воротами. Сделано межевание — юридически всё оформлено! По периметру участка установлено наружное освещение — безопасность и комфорт в любое время суток.Дом расположен в отличной локации: до Москвы — всего 57 км по Киевскому или Минскому шоссе. Регулярное транспортное сообщение с Москвой — всего 45-60 минут на рейсовом автобусе или маршрутке до метро Саларьево.Идеальное предложение для тех, кто ценит комфорт, качество и выгодное расположение.Звоните прямо сейчас, чтобы узнать подробности и записаться на просмотр.
110 м2
1 этаж
Бетонные блоки
- Показать контакты
- Добавить в избранное
110 м2
1 этаж
Бетонные блоки
10 999 990
100 000 /м2
