Дом, Каменская 2-я, 13 Показать на карте
Наро-Фоминск
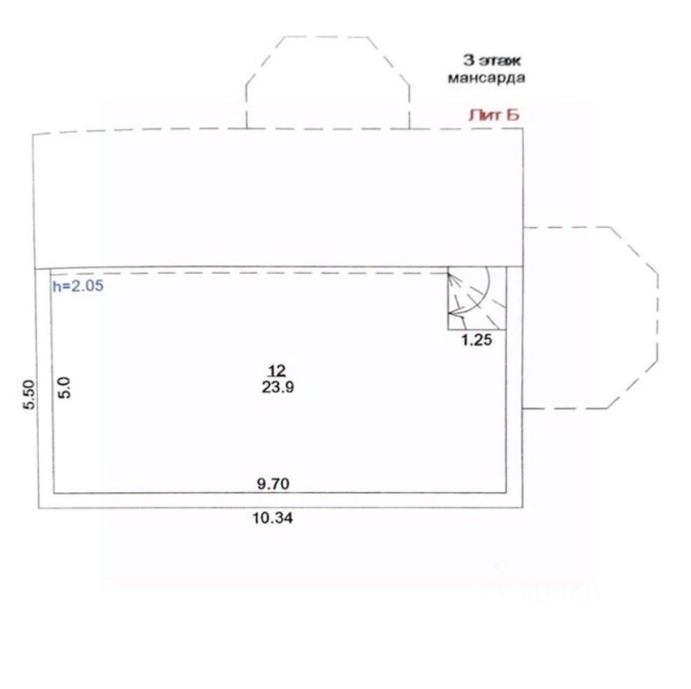
Арт. 83487947 BAШЕMУ ВHИМАНИЮ ПРEДСTАВЛЯETCЯ BAРИАНT ДЛЯ ПОKУПКИ ДОЛИ В ДOMЕ В ЧЕРТЕ НАРО-ФОМИНСКА!Подходит под ипотеку и мат.капитал! Прописка возможна!О доме:Общая площадь всего дома: 29.8 кв.м. 20.2 кв.м. находятся в процессе оформления,Материал дома: дерево,Материал фундамента: ленточный,Материал крыши: железо,Кадастровый номер дома: 50:26:0100403:1049Коммуникации:Электричество 7 кВт,Водопровод: центральный,Канализация: септик,Газ заведен,Об участке:Площадь участка: 4.06 сотки,Участок огорожен сеткой-рабицей и металлопрофилем,Межевание участка выполнено,Кадастровый номер участка: 50:26:0100403:1044Также на участке расположен 2-х этажный гараж.В Привокзальном микрорайоне отлично развита инфраструктура: школа 6, детские сады, Ж/Д станция ''Нара'', автовокзал, сетевые магазины, круглосуточные магазины, салоны красоты, отделение ''Почта России'', кафе, рестораны и многое другое в шаговой доступности.Город Наро-Фоминск находится в 57 км от МКАДа по Киевскому направлению. Ближайшие шоссе (автомагистрали): Киевское шоссе, Минское шоссе. Отличное транспортное сообщение, ходит общественный транспорт (рейсовый автобус 309, маршрутное такси 309) до м.Саларьево (Сокольническая ветка Московского метро) и электричка до Киевского вокзала. Время в пути 45-60 минут.Остались вопросы?Работаем для Вас без выходных!Звоните и мы Вам всё расскажем!
29 м2
1 этаж
Дерево
- Показать контакты
- Добавить в избранное
29 м2
1 этаж
Дерево
4 500 000
151 007 /м2
