Жедочи
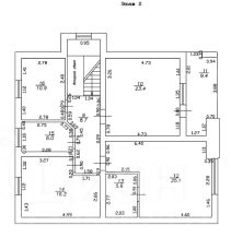
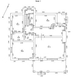
Ваша мечта о загородной жизни - в шаге от реальности!Продается уютный жилой дом в живописном месте Московской области, деревня Жедочи, в окружении леса. Идут заключительные работы по благоустройству территории, уборка мусора, вывоз техники, выравнивание земельного участка, установка забора, ворот, калитки.Жилой дом общей площадью 227,6 кв.м под чистовую отделку. Фундамент сваи заливные Д350 мм, глубина 2 м, 60 шт., лента и монолитная плита. Внешние стены и облицовка - газобетонные блоки Bonolit, утеплитель 50 мм ППС 10, плитка полифасадная. Межэтажные перекрытия бетонные. Кровля - металлочерепица профиль волновой классический. Вентилируемая крыша, утепленная минватой. Окна REHAU Grazio-70 (Фурнитура ROTO) однокамерные, балконные и входные двери с двойным усилением (документы, сертификаты и акты, а также гарантия 15 лет). Отделка внутренних стен гипсовая штукатурка, полы стяжка и утеплитель пеноплекс 50 мм. Теплый пол по периметру первого этажа и в санузле на 2 этаже. Разводка коммуникации по дому электричество, низкоточка (антены, интернет), отопление, радиаторы на 2 этаже. Теплый пол по периметру первого этажа. Входная дверь металлическая. По периметру дома и участка качественный дренаж. Ливневки. 1-этаж: гостиная 41,7 кв.м, кухня 18,5 кв.м, санузел 6,6 кв.м, котельная - 12,2 кв.м, гостевая комната 12,1 кв.м, терраса 18,5 кв.м.2-этаж: 2 спальных комнаты по 16,7 кв.м с выходом на общий балкон, 2 спальных комнаты 18,8 кв.м и 17,8 кв.м с выходом на общую террасу 18,6 кв.м, санузел 8,9 кв.м.Земельный участок 6 соток, ИЖС. Участок будет выровнен и огорожен забором на ленточном фундаменте, ворота, калитка.Коммуникации: электричество 15 кВ, канализация: септик с выходом в централизованный уличный дренаж, для проживания 5 человек, водопровод: скважина 46 м, оборудована тисоном с автоматикой и врезкой в дом, и выводом для уличного полива. Деревня газифицирована, можно подключиться по программе по социальной газификации.Многие соседи уже построились и живут круглогодично, все друг друга знают. Вся инфраструктура в п. Селятино, 7 минут на авто. Магазины, школы, детские сады, больница, поликлиника, торговый центр с кинотеатром и боулингом, кафе, аптеки, банки и т.д. Так же доступна инфраструктура п. Шишкин Лес, 10 минут на авто. Рядом в Сенькино-Секерино находится загородный развлекательный клуб Лачи с банным комплексом и рестораном. Есть ж/д станция Селятино, 30-40 мин о центра Москвы на электричке. До метро 25 минут на машине.Дом поставлен на кадастровый учёт, адрес присвоен. 1 взрослый собственник, оперативный показ, быстрый выход на сделку. Помощь в одобрении ипотеки, консультации по покупке.