Дом, тупик 1-й Успенский, 130 Показать на карте
Жедочи
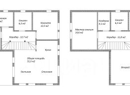
ID_501515 Преимущества: Новый дом с отделкой ''под ключ'' 4 спальни Все центральные коммуникации заведены в дом Тупиковая улица Парковка на 2 автомобиля Дом: Загородный дом площадью 200 м2 под ключ, построенный в 2021 году, представляет собой идеальный вариант для комфортного проживания в пределах Московской области. Дом оснащен всей необходимой техникой, а также обладает современными технологиями строительства и высококачественными материалами.Фундамент дома выполнен как монолитная плита, что обеспечивает его прочность и долговечность. Стены из газоблока обладают отличной теплоизоляцией, что позволяет сохранять тепло внутри помещения в холодный период и поддерживать приятную температуру в жаркую погоду. Отделка декоративной штукатуркой придает дому элегантный и современный вид.Для удобства перемещения между этажами в доме установлена монолитная лестница. Перекрытия также выполнены в виде монолитных плит, что придает дополнительную прочность и надежность. Крыша дома покрыта металлочерепицей, что не только украшает внешний вид, но и обеспечивает надежную защиту от неблагоприятных погодных условий.Окна в доме двухкамерные с энергосберегающими стеклопакетами, что обеспечивает хорошую шумоизоляцию и сохранение тепла внутри помещений.Планировка: Планировка дома продумана до мелочей. На первом этаже расположены прихожая, котельная, гостевой санузел с душевой, просторная кухня-столовая с выходом на террасу и уютная спальня. На втором этаже находится главная спальня с собственным санузлом и двумя гардеробными, две дополнительные спальни, кабинет и санузел с ванной.Инженерия: Инженерные коммуникации в доме полностью подключены и работают исправно.Участок: Участок дома имеет площадь 9 соток и имеет правильную форму прямоугольника. Он огорожен по периметру, что обеспечивает приватность и безопасность жильцов. На участке имеется площадка для парковки двух автомобилей, а также перед домом есть дополнительное место для парковки.Безопасность: Безопасность жильцов обеспечивается системой охраны, которая включает 2 контрольно-пропускных пункта, патрулирование территории и видеонаблюдение. Таким образом, вы можете быть уверены в безопасности своего дома и спокойствии своей семьи.Инфраструктура: Расположение поселка в живописном экологически чистом районе, окруженном лесами и озерами, создает уникальную атмосферу спокойствия и уюта. На территории поселка имеются детские площадки и возможность выхода в лес, что позволяет наслаждаться природной красотой и проводить свободное время на свежем воздухе. В ближайшем поселке Селятино, расположенном всего в 4 км от поселка, имеется все необходимое для комфортной жизни: районная больница, школа, детский сад, магазины, кафе и рестораны.Транспорт: Удобный выезд на трассу позволяет быстро добраться до столицы. Хорошая транспортная доступность: от КПП до метро ''Теплый Стан'' ходят автобусы и маршрутки, а также до ж/д станции ''Селятино''. Асфальтированный круглогодичный подъезд. Реконструированная А107 (бетонка) 4 освещенные полосы до въезда в поселок.Коммуникации: Документы: Жилой дом и земельный участок оформлены. Прописка Московская область.
200 м2
2 этажа
Бетонные блоки
- Показать контакты
- Добавить в избранное
200 м2
2 этажа
Бетонные блоки
30 000 000
150 000 /м2
