2-к, Школьная, 9 Показать на карте
Наро-Фоминск
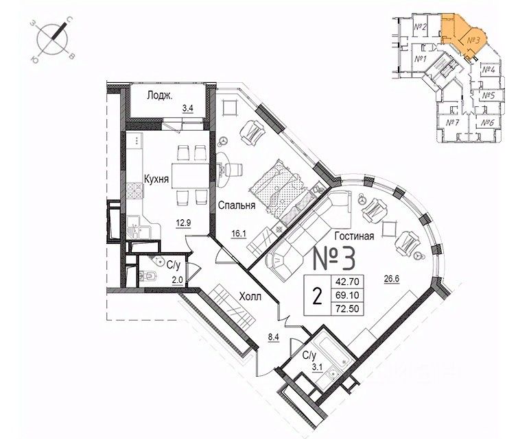
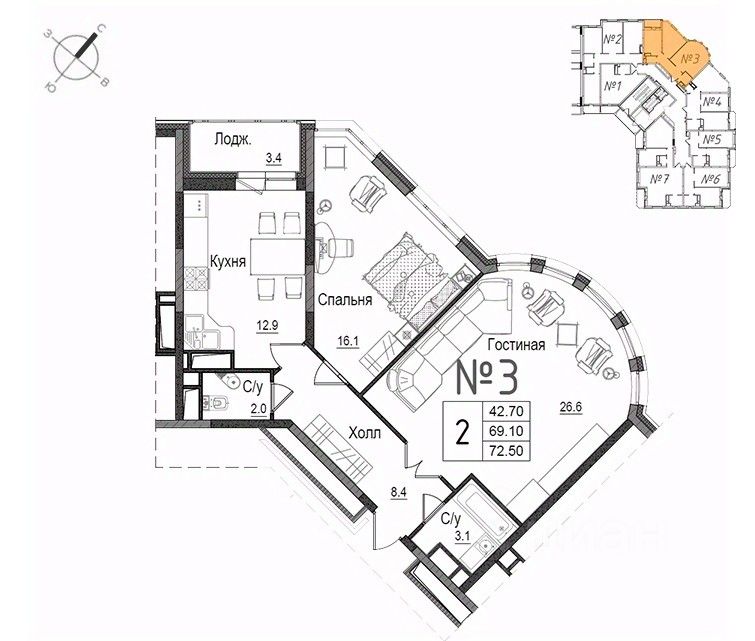
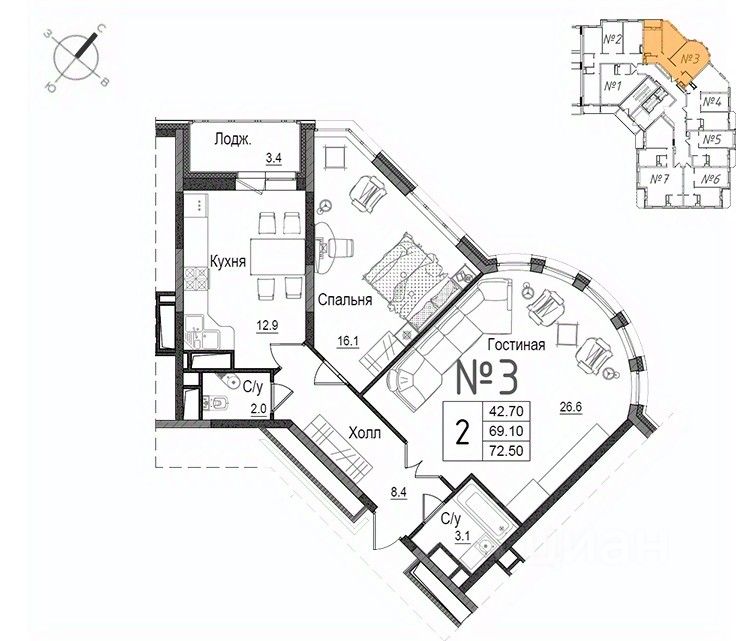
Продаётся 2-комнатная квартира в сданном доме (улица Новикова, 20/1 (Секция 3)), срок сдачи: III-кв. 2024, общей площадью 68.7 кв.м., на 3 этаже. Жилой комплекс ''Школьный'' - современный комплекс комфорт-класса в одном из самых комфортных районов города Наро-Фоминска. Из окон на верхних открываются потрясающие панорамные виды на реку Нара и зеленые массивы. Проектом предусмотрено размещение детской игровой площадки, спортивной площадки, размещение мест для отдыха. С торца нового дома, на первом этаже размещается территория детского сада с прогулочными площадками и теневыми навесами. Ландшафтное озеленение предполагает высадку кустарников, газона, хвойных и лиственных
68 м2
3 / 17 этаж
Кирпич - монолит
- Показать контакты
- Добавить в избранное
68 м2
3 / 17 этаж
Кирпич - монолит
11 850 000
172 489 /м2
Новостройка
